美高梅娱乐城

首页 > 业务信息 > 土地管理 > 征地信息公开 > 征地公告信息
穗府(云)征〔2020〕30号
来源:美高梅娱乐城白云区分局 发布时间:2020-04-22 09:40:41 浏览次数:-
  • 分享到

  广 州 市 人 民 政 府

  征 收 土 地 公 告

  穗府(云)征〔2020〕30号

  经广州市人民政府同意并经美高梅娱乐城批准(粤府土审(02)〔2020〕30号)同意将广州市白云区太和镇南村村第一、二、十二、十三、十四、十五经济合作社属下的0.5015公顷集体土地征收为国有土地。现将经依法批准的《征收土地方案》、《征地补偿安置方案》内容和有关事项公告如下:

  一、建设用地项目名称:南村留用地

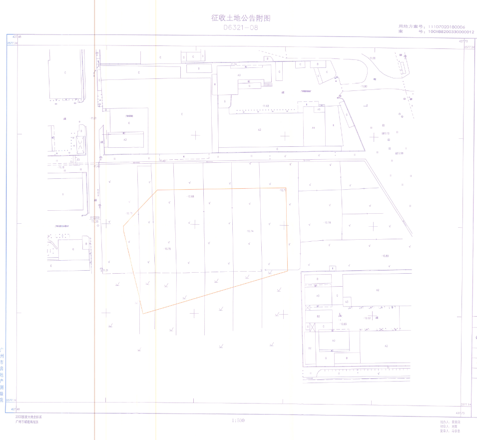
  二、征收土地位置:广州市白云区(四至范围详见附图,用地方案号:11107020180006,案号:10CH88200330000012)。

  三、被征地村及面积:

  广州市白云区太和镇南村村第一、二、十二、十三、十四、十五经济合作社的集体农用地0.5015公顷(均为耕地),合计共0.5015公顷集体土地。

  四、征地补偿安置方案

  (一)征地补偿

被征地单位

地类

名称

征地面积(公顷)

补偿类别

补偿标准(万元/公顷)

补偿金额(万元)

支付对象

支付方式

广州市白云区太和镇南村村第一、二、十二、十三、十四、十五经济合作社
  (共有)

水浇地

0.5015

土地补偿费

207.7560

104.1896

南村村第一、二、十二、十三、十四、十五经济合作社(共有)

货币

安置补偿费

138.5040

69.4598

被安置农民人口

小计

173.6494  

  征地范围内的青苗补偿费和附着物补偿费按白云区政府有关规定进行补偿。

  根据《土地管理法》第五十条“地方各级人民政府应当支持被征地的农村集体经济组织和农民从事开发经营,兴办企业”的规定,为壮大被征地农村集体经济组织的经济实力,另增加补偿14.4131万元给广州市白云区太和镇南村村第一、二、十二、十三、十四、十五经济合作社(共有)农民集体。

  (二)本次征收土地所涉及的被安置农业人员由广州市白云区太和镇南村村第一、二、十二、十三、十四、十五经济合作社以货币补偿的形式安置。请被征地村在本公告期内到美高梅娱乐城白云区分局领取办理安置农业人口征地农转非手续的函件。

  五、被征收土地四至范围内的土地所有权人、使用权人在本公告规定的期限内,持土地权属证书或其他有关证明材料,到指定的地点办理征地补偿登记,请互相转告。

被征地单位

登记时间

登记地点

复核时间

广州市白云区太和镇南村村第一、二、十二、十三、十四、十五经济合作社

2020年4月21日至2020年5月10日

太和规划和自然资源所(联系人:谭建平,联系电话:87437357)

2020年5月11日至2020年5月20日

  《征地预公告》发布后被征地单位和个人抢栽抢种的农作物或抢建的建筑物,不列入补偿范围。

  六、被征收土地所有权人及相关权利人可以自公告期限届满之日起60日内就(粤府土审(02)〔2020〕30号)征地批复向省人民政府申请行政复议。

  七、关于征地补偿安置的其他有关事项

  根据《中华人民共和国土地管理法实施条例》第二十五条的规定,当事人对本征地补偿安置标准有争议,不影响本方案的组织实施。

  特此公告

  2020年4月21日

四至范围详见附图:征地公告附图.png


扫码进入手机页面
太阳城娱乐城 十大靠谱体育投注平台 bet9九卅娱乐在线登录 LoL博彩网站 银河娱乐app下载